Operation CHARM
: Car repair manuals for everyone.
Home
>>
Ford
>>
1986
>>
F 150 4WD Pickup V8-302 5.0L
>>
Repair and Diagnosis
>>
Diagrams
>>
Electrical Diagrams
>>
Heated Glass Element
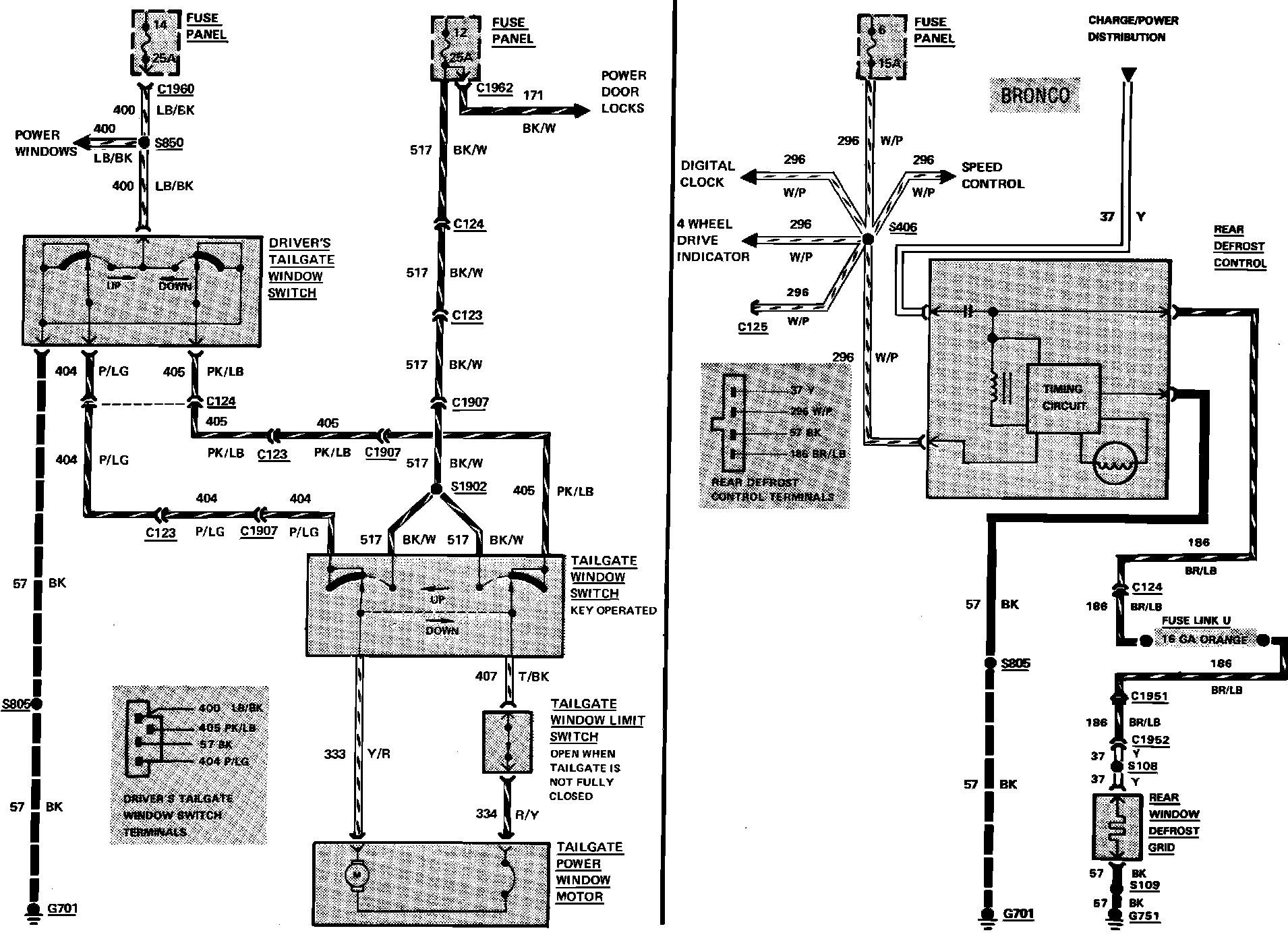
Heated Glass Element
Fig. 48 Rear Defogger & Power Tailgate Window Wiring Circuit. Bronco: